Casas Cápsula en Argentina
Una casa donde quieras, lista en 4 meses. Diseño arquitectónico moderno, domótica integrada y autonomía energética. Fabricamos casas cápsula sustentables que se adaptan a cualquier terreno y clima.
Casas cápsula de diseño único
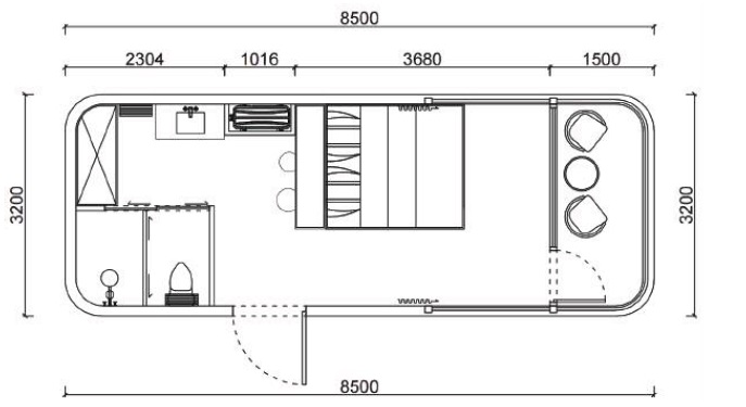
Las casas cápsula son viviendas modulares completas que llegan armadas a tu terreno. Se instalan en 48 a 96 horas sobre plateas de hormigón o pilotes regulables, sin necesidad de obra tradicional.
Estructura de acero galvanizado con garantía de más de 25 años. Aislamiento térmico de lana de roca que mantiene el confort en cualquier clima. Ventanales panorámicos con triple vidrio bajo emisivo.
Cada modelo viene con mobiliario básico, baño premium con separación húmedo-seco, cocina equipada, climatización inverter A++ y paneles de control inteligente.

Tecnología que marca la diferencia
Pequeña
Mediana
Grande


Desde USD 41.500 + IVA
Exterior
Planos
Descripción
Perfecto como home office, estudio o habitación adicional en terrenos con construcción existente.
Área total
Hasta 18 m² compacto y eficiente para espacios urbanos o lotes reducidos.
Capacidad
1 – 2 personas


Desde USD 48.500 + IVA
Exterior
Planos
Descripción
Ideal para turismo premium, vivienda de fin de semana o segunda residencia.
Área total
Hasta 30 m² con ventanales panorámicos de piso a techo.
Capacidad
2 – 4 personas


Desde USD 59.000 + IVA
Exterior
Planos
Descripción
Diseño orgánico que se integra naturalmente con bosque, montaña o costa.
Área total
Hasta 38 m² con materiales cálidos y estructura mixta de acero y madera certificada FSC.
Capacidad
2 – 4 personas
Compromiso sustentable
Encontrá la solución para tu proyecto
Cómo funciona
- Consulta inicial
Elegí tu modelo y contanos sobre tu terreno. Te asesoramos sobre la configuración ideal y te entregamos cotización personalizada en menos de 24 horas. - Fabricación
4 a 6 semanas de producción en nuestras instalaciones con los más altos estándares de calidad. Tu cápsula se construye completa, lista para transportar. - Transporte
Coordinamos la logística para entregar tu cápsula en cualquier punto del país. El costo de transporte se cotiza según distancia y accesibilidad. - Instalación
Montaje profesional en 48 a 96 horas. Conexiones de agua, electricidad y desagüe incluidas. De la entrega a habitar tu casa nueva en menos de una semana.

Visitá nuestro showroom en La Patagonia
Las fotos no alcanzan. Vení a recorrer las cápsulas por dentro, tocá los materiales, probá los paneles de control y sentí la calidad de los acabados. Es la mejor forma de entender por qué no somos una casa prefabricada más.
En el showroom tenemos modelos equipados para que veas cómo se vive realmente en una cápsula. Baño funcionando, cocina instalada, climatización andando. Todo lo que vas a recibir cuando te entreguemos la tuya.

Agendá
tu visita
Coordinemos tu visita. Cada visita es personalizada para que puedas hacer todas las preguntas que necesites sin apuro.
Traé fotos o datos de tu terreno si ya lo tenés. Te mostramos cómo quedaría tu cápsula instalada y te damos una cotización en el momento.
Cómo llegar
Estamos en Villa La Angostura, Neuquén, Argentina.
RN40 km 2112, Q8407.
















